Home
ホーム
Gallery
施工実績
Company
会社概要
Contact
お問い合わせ
採用情報
GALLERY
施工実績
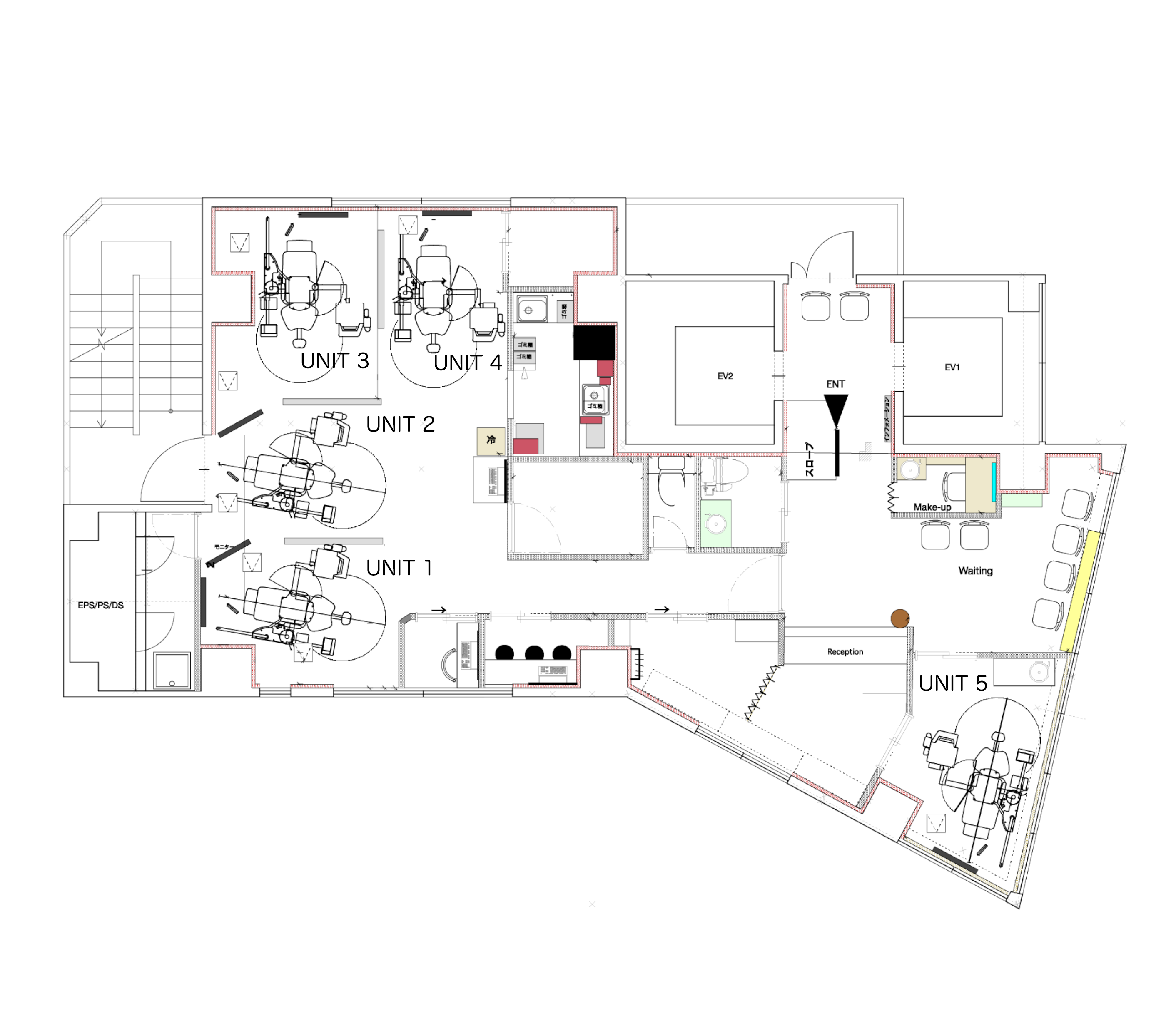
三宮ソレイユ
Drawing
Outline
所在地
兵庫県神戸市
広さ
--坪 (--㎡)
施工期間
1ヶ月
費用
-- 〜 -- 円
建物種別
歯科 歯医者
席数
5席
List
Nest
ONCE
Lano by HAIR
Faily Tale
LUCIDO STYLE Aura
broocH
nehus.
shu sports
三宮ソレイユ
Instagram
hair make
Platiha